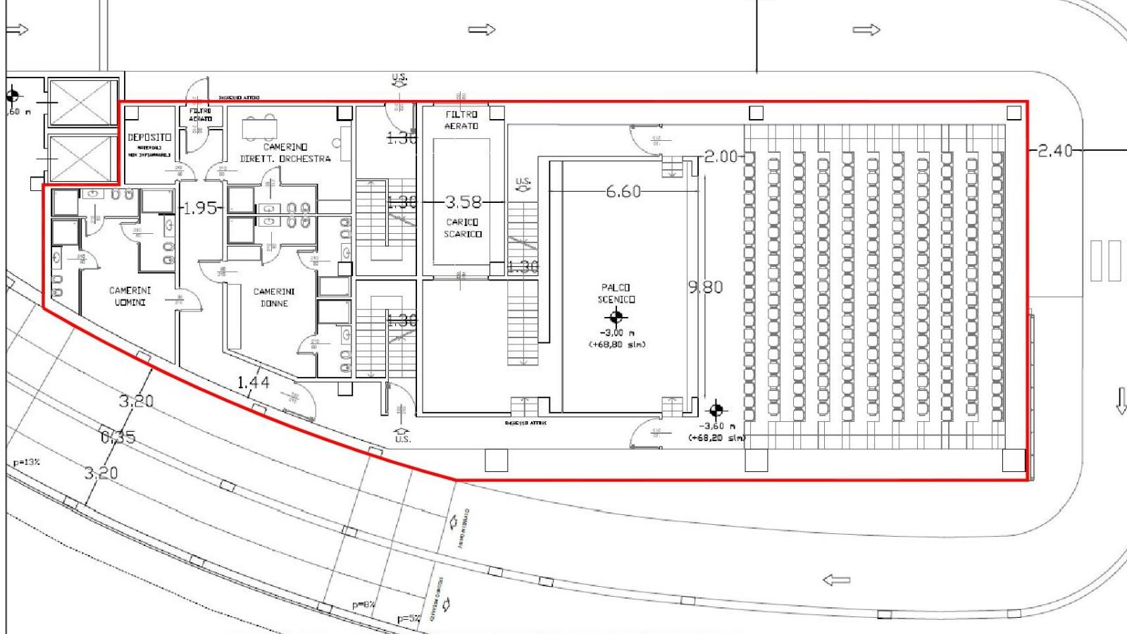
In data 08/08/2023 e in data 04/12/2023 abbiamo chiesto documentazione aggiornata a riguardo delle pratiche edilizie del comparto Migross. In tale data non sono emerse agli atti novità significative. Importanti aggiornamenti sono però emersi a novembre 2024 allorquando l’amministrazione comunale ha fatto sapere di voler rinunciare, inspiegabilmente, all’onere del Teatro/Auditorium e della proprietà dei parcheggi. Si veda tale tema nella scheda apposita.
Ultimi articoli
Minority report del 27.4.26
Minority report del Consiglio Comunale del 27.4.26 Come per il progetto ex Pattinodromo:parcheggi al posto di aree per la socialità! La "visione" già annunciata per l'area "ex Patt...
Cucina sociale. Un’occasione sprecata
Cucina sociale. Un’occasione sprecataProposta di cucina sociale bocciata, nonostante la struttura sia stata ammodernata e sovradimensionata per servire anche scuole e asili.Servizi...
Maclino, al posto del campetto parrocchiale, un parcheggio!
Come per il progetto ex Pattinodromo: parcheggi al posto di aree per la socialità! La "visione" già annunciata per l'area "ex Pattinodromo" a Toscolano si replica a Maclino. L'Ammi...